Tavaly a legdrágábban eladott öröklakás Tokióban egy felhőkarcoló tetején elhelyezkedő 203,96 m2-es lakás volt, amelyet 12,7 millió $-ért (kb. 33 milliárd forintnak megfelelő összegért) vehetett meg a boldog tulajdonos (megközelítőleg 167 millió Ft/m2 !). Az épület 170 méter hosszan nyúlik a magasba, és 44 emeletnyi luxuslakással épült Tokió belvárosában. Bár a torony várható befejezése 2018 februárjában fog bekövetkezni, de már 324 lakást kínáltak eladásra. A japán média forrásai szerint, a fejlesztő már több ezer érdeklődést kapott a néhány száz lakásra.
Az épületet (nagyon nyersfordításban Akasaka Királyi Park Tornyát) Kengo Kuma tervezte. Akasaka 9-chome-jában (chome = kerület), Tokió északi részén. Tokió belvárosa ad otthont továbbá a Tokiói Művészeti Múzeumnak (The Suntory Museum of Art), számos utcai üzletnek és étteremnek, kétnyelvű egészségügyi létesítménynek és egy 10.000 m2-es parknak is.
Mint sok másik fejlett japán épületben, így az Akasaka Toronyban is található lesz konditerem, portaszolgálat, parkoló, magas előcsarnok (kilátással Fujira!) és szórakozó hely, továbbá földrengés-gátló technológiával is el lesz látva.
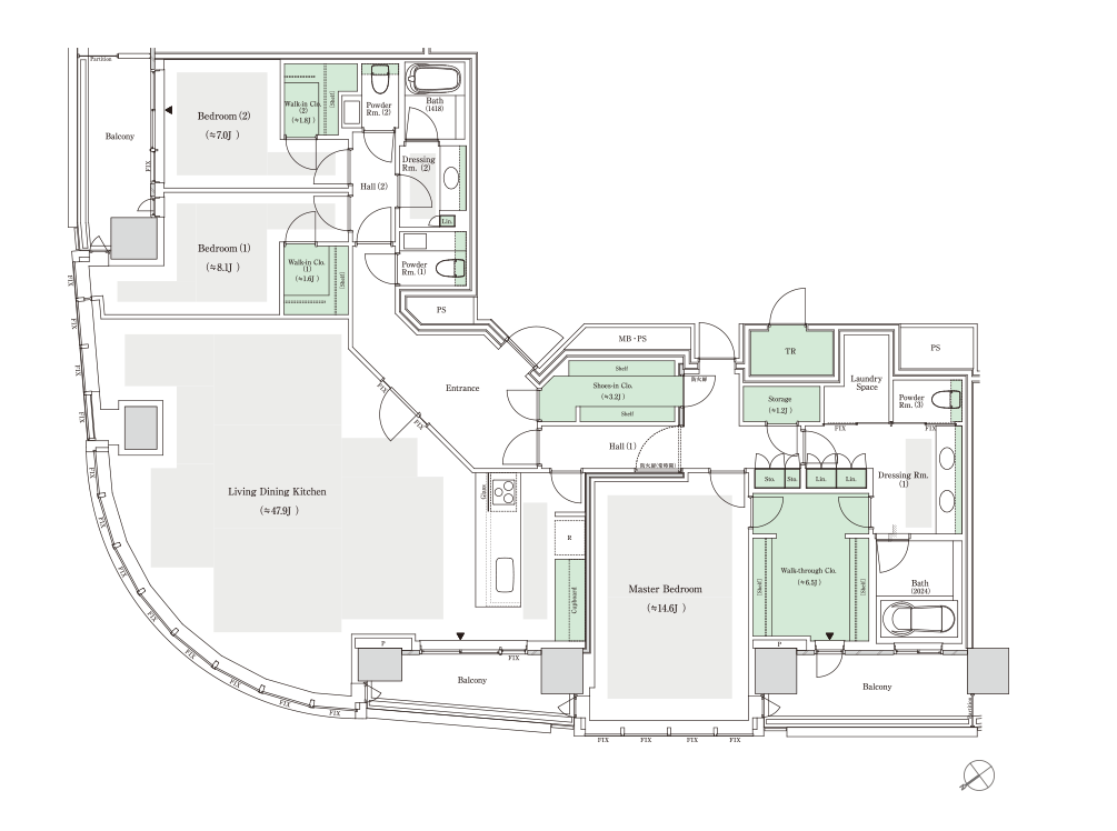
A 2015-ben eladott lakás az alábbi alaprajzzal lett meghirdetve: 3LDK +WTC + 2WIC + SIC + S + TR.
3LDK: vagyis 3 szoba: nappali (L), étkező (D) és konyha (K). Ezek összesen 47,9 m2-esek, ami sok esetben egy lakás egész mérete.
WTC: átjárható gardrób, ahonnan közvetlenül az erkélyre lehet sétálni.
2WIC: 2 gardrób
SIC: cipő gradrób
S: tároló helység vagy spájz
TR: csomagtároló
A felsoroltakon kívül továbbá található még két fürdőszoba is a lakásban.
Mivel még nincs teljesen készen az épület, ezért a tervező által megálmodott szobák az alábbi képeken megtekinthetőek.
MynAh







Kommentek
Kommenteléshez kérlek, jelentkezz be: